EIJSDEN

Woene ien de kern vaan Eèsjde, mit alle vuurzieninge um d'n hook en de hiel gezellege Eèsjdese terrasse op e paoër menute laope.

Margrietstraat 25 – comfortabel wonen met karakter in de kern van Eijsden

Aan de Margrietstraat 25 komen huiselijkheid, comfort en gastvrijheid op een prettige manier samen. Deze verzorgde twee-onder-een-kapwoning, gelegen in de kern van Eijsden, biedt een fijne balans tussen sfeer, functionaliteit en dagelijks woongenot. Een warm en comfortabel (t)huis, klaar voor de volgende stap.

Comfortabel wonen

De woning beschikt over een ruime woonkamer met aangrenzende keuken en is voorzien van zonnepanelen, airconditioning en rolluiken. De badkamer is enkele jaren geleden volledig vernieuwd. Daarnaast telt de woning vier slaapkamers, wat zorgt voor volop ruimte voor gezin, werk of hobby’s.

Rustige ligging en verzorgd buitenleven

De Margrietstraat is een rustige, verkeersluwe straat met een aangename woonomgeving. De ruime oprit, nette voortuin en de knusse achtertuin met overkapping zorgen voor een prettige buitenbeleving, het hele jaar door.

Ontvangst en leefruimte

Via de entree kom je in de hal met een modern gastentoilet. De woonkamer is licht en prettig van indeling en vormt een fijne verbinding tussen wonen en koken. De keuken is ruim opgezet - een plek waar koken en samen zijn vanzelf samengaan.

Comfortabele verdiepingen

Op de eerste verdieping bevinden zich drie slaapkamers, waaronder een royale hoofdslaapkamer. De badkamer is voorzien van een fraaie douche, wastafel, en een tweede toilet.
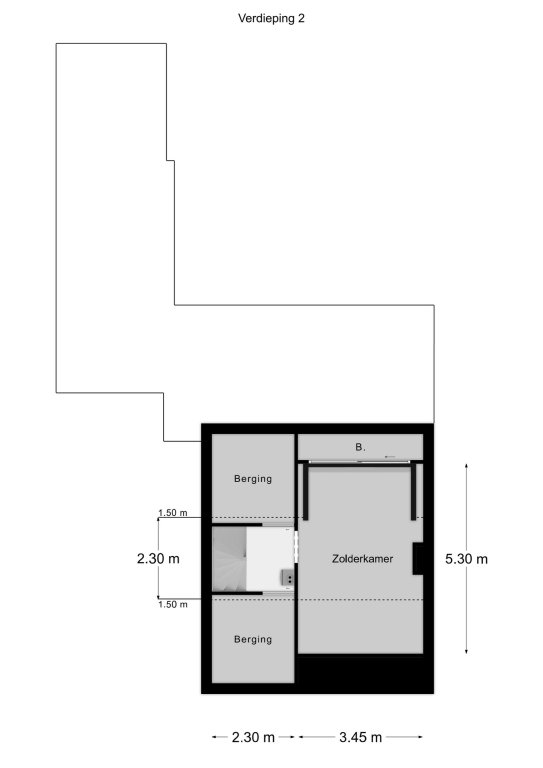
Via een vaste trap bereik je de ruime zolderverdieping, die zich uitstekend leent voor een extra slaapkamer, thuiswerkplek of hobbyruimte.

Buiten genieten

De zonnige achtertuin op het zuiden biedt volop gelegenheid om te genieten van lange avonden buiten, mede dankzij de overkapping. De garage en extra bergruimte zijn ideaal voor werken aan huis, hobby’s of opslag. Binnen en buiten lopen hier op natuurlijke wijze in elkaar over.

Centrale ligging

De woning ligt midden in de kern van Eijsden. Scholen, kinderopvang en sportvoorzieningen zijn snel bereikbaar. Ook alle dagelijkse voorzieningen en de geliefde Eijsdense terrassen bevinden zich op korte loopafstand.


Waarom deze woning zo aantrekkelijk is:

• Ligging in de kern van Eijsden
• Mooie woonruimte – Ideaal voor het realiseren van jouw droomhuis, met volop mogelijkheden en kansen.
• Eigen parkeerplaatsen én garage – Altijd verzekerd van een plek voor je auto, midden in het centrum.
• Comfortabele, private tuin – Geniet in alle rust en privacy van het buitenleven
• Instap klaar
• Airconditioning
• 4 slaapkamers
• Zonnepanelen
• Culinair genieten om de hoek –De sfeervolle Diepstraat op nog geen 250 meter
• Alle winkels en voorzieningen binnen handbereik



Indeling

Begane grond:

Woonkamer: ca. 31 m²
Keuken: ca. 10 m²
Garage: ca. 25 m²


Eerste verdieping:

Slaapkamer 1: ca 14.3 m²
Slaapkamer 2: ca 9 m²
Slaapkamer 3: ca 6.2 m²
Badkamer: ca. 5 m²

Tweede verdieping:

Slaapkamer 4: ca 18 m²
Berging 1: ca 5 m²
Berging 2: ca 5 m²



Eijsden, parel aan de Maas, is een charmant en veelzijdig dorp, gelegen in het zuiden van Nederland,
nabij de Belgische grens en de historische stad Maastricht.

Het dorp biedt een perfecte balans tussen landelijke rust en de gemakken van de stad, waardoor het een ideale woonplek is voor wie op zoek is naar een rustige, doch verbonden levensstijl.

De omgeving van Eijsden is adembenemend, met uitgestrekte weilanden, de schilderachtige Maasvallei en een netwerk van wandel- en fietsroutes die natuurliefhebbers en actieve buitenmensen aanspreken.

Toch heeft het dorp meer te bieden dan alleen natuur. Het sociale leven in Eijsden is levendig en hecht, met een gemeenschap waar bewoners elkaar kennen en actief betrokken zijn. Diverse evenementen, van lokale markten tot sport- en culturele festiviteiten, zorgen voor een bruisend dorpsleven. Jaarlijks hoogtepunt zijn de "Broonkfeesten". Daarnaast dragen de vele verenigingen en clubs – van sport tot muziek en vrijwilligerswerk – bij aan de sociale cohesie en het gemeenschapsgevoel.

In Eijsden vindt u een gezellige dorpskern met lokale winkels, horecagelegenheden en scholen, waardoor het dorp van alle gemakken is voorzien. De bereikbaarheid van Maastricht en andere omliggende steden maakt het mogelijk om zowel te genieten van het landelijke leven als van de culturele en sociale mogelijkheden die de stad te bieden heeft.

Kortom, Eijsden is een ideale plek om te wonen voor wie het beste van twee werelden zoekt: rust en natuur, gecombineerd met een hechte gemeenschap en een rijk sociaal leven.


Note:
- Alle opgegeven maten en oppervlakten zijn indicatief
- Deze informatie is door ons met de nodige zorgvuldigheid samengesteld.
- Onzerzijds wordt echter geen enkele aansprakelijkheid aanvaard voor enige onvolledigheid, onjuist of anderszins, dan wel de gevolgen daarvan
- De waarborgsom/bankgarantie is 10% van de koopsom. De koper dient deze binnen 2 weken nadat het financieringsvoorbehoud is verlopen bij de desbetreffende notaris te deponeren;
- Ter bescherming van de belangen van zowel koper als verkoper, wordt uitdrukkelijk gesteld dat een koopovereenkomst met betrekking tot deze onroerende zaak eerst dan tot stand komt nadat koper en verkoper de koopovereenkomst hebben getekend (“schriftelijkheidsvereiste”)
- Koper is te allen tijde gerechtigd voor eigen rekening een bouwkundige keuring te (laten) verrichten dan wel andere adviseurs te raadplegen teneinde een goed inzicht te verkrijgen over de staat van onderhoud.

Wij aanvaarden geen enkele aansprakelijkheid voor enige onvolledigheid, onjuistheid of anderszins, dan wel de gevolgen daarvan. Alle opgegeven maten en oppervlakten zijn indicatief. Deze presentatie is slechts indicatief. Wij streven naar een zo zorgvuldig mogelijke informatie van de gegevens.

Adres
Margrietstraat 25
EIJSDEN

Bouwjaar
1965

Inhoud
492m3

Gebruikersoppervlakte
90m2

Prijs
€409.000,-

Informatie aanvragen