Eijsden

'Jacques Lebel': 'n zier gezon appelsoert oet 1825.
Greun gèel van kleur mit 'ne roeje blos!

Yes! Dit is er eentje om verliefd op te worden – welkom aan de Jacques Lebel in Eijsden!

Ben je op zoek naar een huis waar je direct een glimlach van krijgt? Stop maar met zoeken, want deze instapklare twee-onder-een-kapwoning heeft écht alles in huis om jouw nieuwe thuis te worden!

Gelegen in een super fijne, kindvriendelijke buurt is dit de perfecte plek voor gezinnen. Kinderen die veilig buiten spelen, buren die elkaar groeten en alle voorzieningen – van scholen en kinderopvang tot winkels en de bibliotheek – lekker dichtbij. Hoe fijn is dat!

Je komt thuis op je eigen oprit met een handige garage. Binnen voelt het meteen goed: een verzorgde, lichte woning waar je zonder klussen kunt intrekken. Gewoon spullen neerzetten en genieten maar!

Met 4 fijne slaapkamers is er ruimte genoeg voor het hele gezin, een thuiskantoor of die langgewenste hobbykamer. De badkamer? Die is heerlijk compleet met zowel een ligbad om in weg te dromen als een frisse douche voor de snelle ochtenden.

En dan… de tuin!
De ruime achtertuin is een plek waar je spontaan zin krijgt in lange zomeravonden, barbecuefeestjes en ontspannen koffiemomentjes. Onder de royale overkapping zit je altijd goed – weer of geen weer!

Met de zonnepanelen woon je bovendien lekker energiezuinig én toekomstproof

Kortom: een huis vol sfeer, ruimte en gemak op een plek waar je je meteen thuis voelt.

Zie jij jezelf hier al wonen? Wacht niet te lang en plan snel een bezichtiging – dit pareltje wil je niet missen!


INDELING:

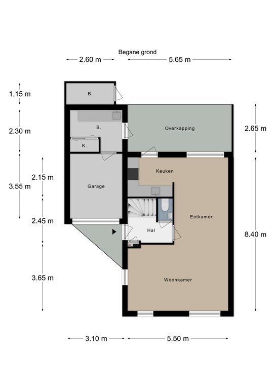
Begane grond:

Hal en Toilet: ca. 4.6 m²
Woonkamer: ca. 28.2 m²
Keuken: ca. 12 m²
Overkapping: ca.15 m²
Garage en bijkeuken: ca. 24 m²
Achtertuin: ca. 148 m²

Eerste verdieping:

Slaapkamer 1: ca. 9 m²
Slaapkamer 2: ca. 15 m²
Slaapkamer 3: ca. 10 m²
Badkamer: ca. 6.5 m²

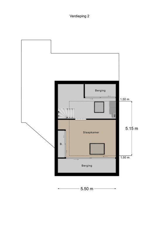
Tweede verdieping:

Slaapkamer: ca. 22 m²
Bergingen: ca. 24 m²





Eijsden, parel aan de Maas, is een charmant en veelzijdig dorp, gelegen in het zuiden van Nederland, nabij de Belgische grens en de historische stad Maastricht.
Het dorp biedt een perfecte balans tussen landelijke rust en de gemakken van de stad, waardoor het een ideale woonplek is voor wie op zoek is naar een rustige, doch verbonden levensstijl.
De omgeving van Eijsden is adembenemend, met uitgestrekte weilanden, de schilderachtige Maasvallei en een netwerk van wandel- en fietsroutes die natuurliefhebbers en actieve buitenmensen aanspreken.
Toch heeft het dorp meer te bieden dan alleen natuur. Het sociale leven in Eijsden is levendig en hecht, met een gemeenschap waar bewoners elkaar kennen en actief betrokken zijn. Diverse evenementen, van lokale markten tot sport- en culturele festiviteiten, zorgen voor een bruisend dorpsleven.
Daarnaast dragen de vele verenigingen en clubs – van sport tot muziek en vrijwilligerswerk – bij aan de sociale cohesie en het gemeenschapsgevoel.
In Eijsden vindt u een gezellige dorpskern met lokale winkels, horecagelegenheden en scholen, waardoor het dorp van alle gemakken is voorzien. De bereikbaarheid van Maastricht en andere omliggende steden maakt het mogelijk om zowel te genieten van het landelijke leven als van de culturele en sociale mogelijkheden die de stad te bieden heeft.
Kortom, Eijsden is een ideale plek om te wonen voor wie het beste van twee werelden zoekt: rust en natuur, gecombineerd met een hechte gemeenschap en een rijk sociaal leven.


Note:
- Alle opgegeven maten en oppervlakten zijn indicatief
- Deze informatie is door ons met de nodige zorgvuldigheid samengesteld. Onzerzijds wordt echter geen enkele aansprakelijkheid aanvaard voor enige onvolledigheid, onjuist of anderszins, dan wel de gevolgen daarvan
- De waarborgsom/bankgarantie is 10% van de koopsom. De koper dient deze binnen 2 weken nadat het financieringsvoorbehoud is verlopen bij de desbetreffende notaris te deponeren;
- Ter bescherming van de belangen van zowel koper als verkoper, wordt uitdrukkelijk gesteld dat een koopovereenkomst met betrekking tot deze onroerende zaak eerst dan tot stand komt nadat koper en verkoper de koopovereenkomst hebben getekend (“schriftelijkheidsvereiste”)
- Koper is te allen tijde gerechtigd voor eigen rekening een bouwkundige keuring te (laten) verrichten dan wel andere adviseurs te raadplegen teneinde een goed inzicht te verkrijgen over de staat van onderhoud.
Kijk op onze website wolfsmakelaars.nl voor meer verkoopinformatie Hier zijn ook onze disclaimer en de algemene voorwaarden te vinden. Wij aanvaarden geen enkele aansprakelijkheid voor enige onvolledigheid, onjuistheid of anderszins, dan wel de gevolgen daarvan. Alle opgegeven maten en oppervlakten zijn indicatief. Deze presentatie is slechts indicatief. Wij streven naar een zo zorgvuldig mogelijke informatie van de gegevens.

Adres
Jacques Lebel 33
Eijsden

Bouwjaar
1994

Inhoud
470m3

Gebruikersoppervlakte
116m2

Prijs
€485.000,-

Informatie aanvragen