EIJSDEN

Ut hoes van de Sjmiëd….

In de oude kern van Eijsden staat een huis dat je niet uitlegt — maar dat je voelt.

Dit is zo’n plek waar de stilte anders klinkt. Waar muren verhalen dragen. Waar je binnenkomt en denkt: ja… dit is het.

Geen franje. Geen opsmuk. Gewoon een huis met een ziel.

Authentiek tot in de details.

Een gezellige woonkamer waar het leven vertraagt en avonden vanzelf langer worden.
Een ruime keuken waar het leven zich vanzelf afspeelt.
Een aparte hobby- of werkkamer, voor wie ruimte zoekt om te creëren, te concentreren of zich even terug te trekken.
Drie slaapkamers waar je wakker wordt met rust.
Een fijne, ruime badkamer waar de dag rustig begint en ontspannen eindigt.

En buiten… een prachtige tuin die je omarmt, verstopt van de wereld, midden in het dorp.

De locatie is uniek. Niet omdat het zo genoemd wordt, maar omdat het dat simpelweg is.
Oude kern. Geen herhaling. Geen kopie.

Dit huis schreeuwt niet. Het fluistert.
En wie het hoort, weet genoeg.

Niet voor iedereen.
Wel voor degene die hier thuis wil komen.


Waarom deze woning zo aantrekkelijk is:

• Fantastische locatie
• Karakter
• Historie
• Schitterende tuin
• Authentiek

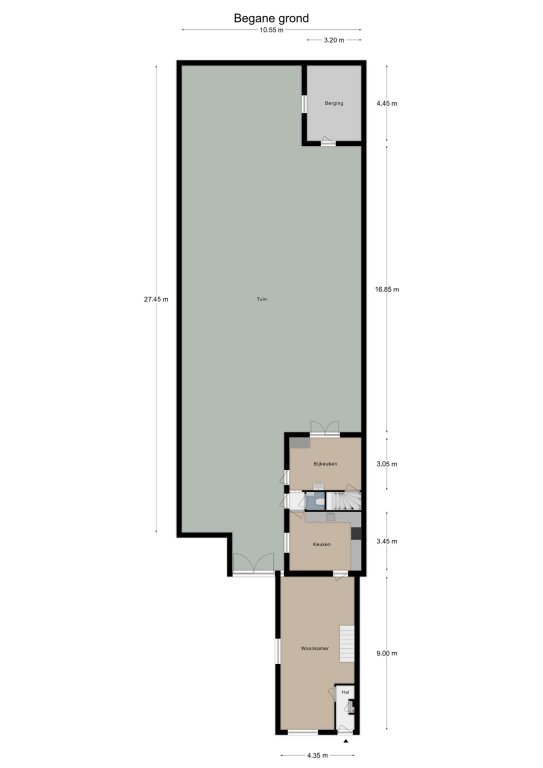
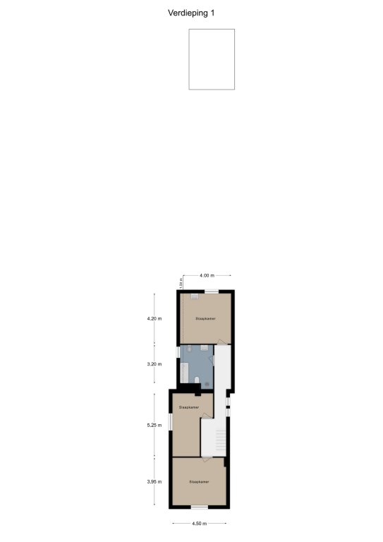
Indeling

Begane grond
• Hal: ca. 3 m2
• Woonkamer ca. 39 m2
• Keuken: ca. 15 m2
• Doorzonkamer: ca. 13.2 m2
• Tuin : ca. 289 m2

Kelder
• Werkruimte: ca. 21 m2
• Kelder: ca. 23 m2

Eerste verdieping
• Slaapkamer 1: ca. 17.8 m2
• Slaapkamer 2: ca. 16.8 m2
• Slaapkamer 3: ca. 17 m2
• Badkamer: ca. 9.6 m2


Eijsden, parel aan de Maas, is een charmant en veelzijdig dorp, gelegen in het zuiden van Nederland,
nabij de Belgische grens en de historische stad Maastricht.

Het dorp biedt een perfecte balans tussen landelijke rust en de gemakken van de stad, waardoor het een ideale woonplek is voor wie op zoek is naar een rustige, doch verbonden levensstijl.

De omgeving van Eijsden is adembenemend, met uitgestrekte weilanden, de schilderachtige Maasvallei en een netwerk van wandel- en fietsroutes die natuurliefhebbers en actieve buitenmensen aanspreken.

Toch heeft het dorp meer te bieden dan alleen natuur. Het sociale leven in Eijsden is levendig en hecht, met een gemeenschap waar bewoners elkaar kennen en actief betrokken zijn. Diverse evenementen, van lokale markten tot sport- en culturele festiviteiten, zorgen voor een bruisend dorpsleven. Jaarlijks hoogtepunt zijn de "Broonkfeesten". Daarnaast dragen de vele verenigingen en clubs – van sport tot muziek en vrijwilligerswerk – bij aan de sociale cohesie en het gemeenschapsgevoel.

In Eijsden vindt u een gezellige dorpskern met lokale winkels, horecagelegenheden en scholen, waardoor het dorp van alle gemakken is voorzien. De bereikbaarheid van Maastricht en andere omliggende steden maakt het mogelijk om zowel te genieten van het landelijke leven als van de culturele en sociale mogelijkheden die de stad te bieden heeft.

Kortom, Eijsden is een ideale plek om te wonen voor wie het beste van twee werelden zoekt: rust en natuur, gecombineerd met een hechte gemeenschap en een rijk sociaal leven.


Note:
- Alle opgegeven maten en oppervlakten zijn indicatief
- Deze informatie is door ons met de nodige zorgvuldigheid samengesteld.
- Onzerzijds wordt echter geen enkele aansprakelijkheid aanvaard voor enige onvolledigheid, onjuist of anderszins, dan wel de gevolgen daarvan
- De waarborgsom/bankgarantie is 10% van de koopsom. De koper dient deze binnen 2 weken nadat het financieringsvoorbehoud is verlopen bij de desbetreffende notaris te deponeren;
- Ter bescherming van de belangen van zowel koper als verkoper, wordt uitdrukkelijk gesteld dat een koopovereenkomst met betrekking tot deze onroerende zaak eerst dan tot stand komt nadat koper en verkoper de koopovereenkomst hebben getekend (“schriftelijkheidsvereiste”)
- Koper is te allen tijde gerechtigd voor eigen rekening een bouwkundige keuring te (laten) verrichten dan wel andere adviseurs te raadplegen teneinde een goed inzicht te verkrijgen over de staat van onderhoud.

Wij aanvaarden geen enkele aansprakelijkheid voor enige onvolledigheid, onjuistheid of anderszins, dan wel de gevolgen daarvan. Alle opgegeven maten en oppervlakten zijn indicatief. Deze presentatie is slechts indicatief. Wij streven naar een zo zorgvuldig mogelijke informatie van de gegevens.

Adres
Diepstraat 21
EIJSDEN

Bouwjaar
1900

Inhoud
657m3

Gebruikersoppervlakte
146m2

Prijs
€619.000,-

Informatie aanvragen